| 価格 | 2,890万円値下がり ![]() |
||||
|---|---|---|---|---|---|
| 所在地 | 埼玉県狭山市柏原
この地域周辺の物件を見る |
土地面積 | 190.31m² (57.57坪) | 建物面積 | 102.06u |
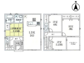
| 築年月 | 2025年10月築 | 間取り | 4LDK (LDK16/和室5.25/洋室5.25/洋室6/洋室8) | ||
| 交通 |
西武新宿線 狭山市 徒歩33分/下宿 バス7分 停歩1分
西武新宿線 新狭山 徒歩42分 西武池袋線 稲荷山公園 徒歩53分 |
||||
センチュリー21クレド 坂戸本店
電話をかける(携帯・PHS可)
0120-89-9010
「ホームページを見た」とお伝え下さい。
お問い合わせ番号をお伝えください
RHS-143601-8538
| 特徴 |
|
|---|---|
| セールスコメント | 住宅ローンやお買換え・下取等のご相談も賜っております。 有中国籍員工中文対応! |
| 採光面 | 南 | 構造/階数 | 木造/地上2階建 |
|---|---|---|---|
| 建ぺい率 | 60(%) | 容積率 | 200(%) |
| 駐車場 | 有 | 現況/引渡し | 新築/即時 |
| 土地権利 | 所有権 | 私道負担面積 | - |
| 接道状況 | 接道: 東 公道 道路幅: 7.5m | 用途地域 |
指定なし
|
| セットバック | - | 法令上の制限 | 景観法 |
| 地目 | 宅地 | 地勢 | 平坦 |
| 建築確認番号 | 第25UDI1W健03063号 | 都市計画 | 市街化調整区域 |
| 取引態様 | 仲介 | ||
| 情報更新日 | 2025年12月12日 | 次回更新日 | 2025年12月26日 |
| 小学校区 | () |
中学校区 | () |
|---|
センチュリー21クレド 坂戸本店
電話をかける(携帯・PHS可)
0120-89-9010
「ホームページを見た」とお伝え下さい。
お問い合わせ番号をお伝えください
RHS-143601-8538
| 価格 | 万円 | ||
|---|---|---|---|
| 年利率 | % |
||
| ボーナス払い | 返済年数 | ||
| 頭金 | 直接入力する | 万円 | |

毎月のご返済額 |
ボーナス(×年2回) |
物件価格2,890万円 |
![]() |
![]() |
狭山市柏原
2790万円〜2950万円 |
センチュリー21クレド 坂戸本店
電話をかける(携帯・PHS可)
0120-89-9010
「ホームページを見た」とお伝え下さい。
お問い合わせ番号をお伝えください
RHS-143601-8538
SEARCH FOR HOME
フリーワードから探す
ESTATE FOR SALE

人気の条件から検索
設計住宅性能評価5分野7項目で最も高い等級取得
敷地57坪超の4LDK
■「制振装置」付
■「防犯カメラ」設置
■南向きで陽当り通風良好
■駐車2台可能(車種による)