| 価格 | 2,180万円 ![]() |
||||
|---|---|---|---|---|---|
| 所在地 | 埼玉県比企郡吉見町東野1丁目
この地域周辺の物件を見る |
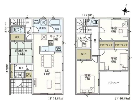
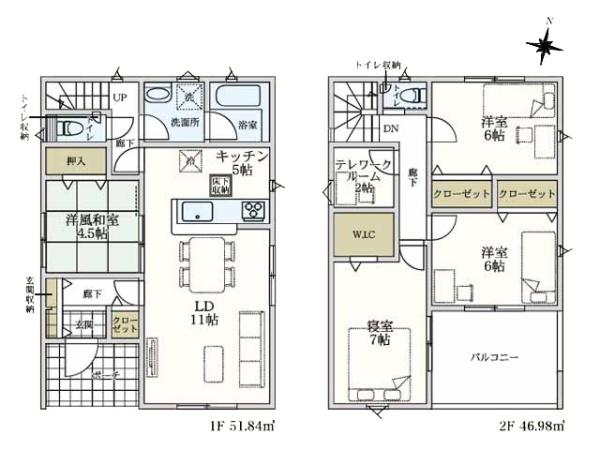
土地面積 | 214.97m² (65.03坪) | 建物面積 | 98.82u |
| 築年月 | 2026年1月築 | 間取り | 4SLDK (LDK16/和室4.5/洋室7/洋室6/洋室6/S2) | ||
| 交通 |
JR高崎線 鴻巣 丸貴 バス17分 停歩8分
JR高崎線 北鴻巣 徒歩76分 東武東上線 東松山 徒歩88分 |
||||
センチュリー21クレド 坂戸本店
電話をかける(携帯・PHS可)
0120-89-9010
「ホームページを見た」とお伝え下さい。
お問い合わせ番号をお伝えください
RHS-143601-9004
| 特徴 |
|
|---|---|
| セールスコメント | 住宅ローンやお買換え・下取等のご相談も賜っております。 有中国籍員工中文対応! |
| 採光面 | 南 | 構造/階数 | 木造/地上2階建 |
|---|---|---|---|
| 建ぺい率 | 60(%) | 容積率 | 200(%) |
| 駐車場 | 有 | 現況/引渡し | 新築/相談 |
| 土地権利 | 所有権 | 私道負担面積 | - |
| 接道状況 | 接道: 西 公道 道路幅: 9.02m | 用途地域 |
第二種中高層住居専用地域
|
| セットバック | - | 法令上の制限 | 景観法 |
| 地目 | 宅地 | 地勢 | |
| 建築確認番号 | 第25UDI1W建05417号 | 都市計画 | 市街化区域 |
| 取引態様 | 仲介 | ||
| 情報更新日 | 2026年02月14日 | 次回更新日 | 2026年02月28日 |
| 小学校区 | 吉見町立東第一小学校 (埼玉県比企郡吉見町) この学区の他の物件を見る |
中学校区 | 吉見中学校 (埼玉県比企郡吉見町) この学区の他の物件を見る |
|---|
センチュリー21クレド 坂戸本店
電話をかける(携帯・PHS可)
0120-89-9010
「ホームページを見た」とお伝え下さい。
お問い合わせ番号をお伝えください
RHS-143601-9004
| 価格 | 万円 | ||
|---|---|---|---|
| 年利率 | % |
||
| ボーナス払い | 返済年数 | ||
| 頭金 | 直接入力する | 万円 | |

毎月のご返済額 |
ボーナス(×年2回) |
物件価格2,180万円 |
![]() |
![]() |
比企郡吉見町東野1丁目
2180万円〜2380万円 |
センチュリー21クレド 坂戸本店
電話をかける(携帯・PHS可)
0120-89-9010
「ホームページを見た」とお伝え下さい。
お問い合わせ番号をお伝えください
RHS-143601-9004
SEARCH FOR HOME
フリーワードから探す
ESTATE FOR SALE

人気の条件から検索
■敷地65坪超!制振装置設置の地震に強い全3棟
■カースペース3台
■南向きLDK16帖
■和洋室は客間やキッズスペースにも!