| 価格 | 1,390万円 ![]() |
||||
|---|---|---|---|---|---|
| 所在地 | 埼玉県鶴ヶ島市脚折町1丁目
この地域周辺の物件を見る |
専有面積 | 54.87u | ||
| 交通 |
東武東上線 坂戸 徒歩15分
東武東上線 若葉 徒歩15分 東武東上線 北坂戸 徒歩38分 |
管理費等 | 13,300円 | 修繕積立金 | 10,970円 | 所在階/階数 | 5階/地上7階建 | 築年月 | 1989年11月築 | バルコニー面積 | 6.88m² |
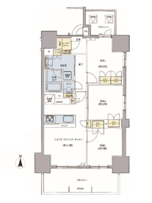
| 間取り | 3DK (DK8.5/洋室6/洋室4.1/洋室4.5) | ||||
センチュリー21クレド 坂戸本店
電話をかける(携帯・PHS可)
0120-89-9010
「ホームページを見た」とお伝え下さい。
お問い合わせ番号をお伝えください
RHS-143601-8384
| 特徴 |
|
|---|---|
| セールスコメント | 住宅ローンやお買換え・下取等のご相談も賜っております。 有中国籍員工中文対応! |
| 採光面 | 南西 | 取引態様 | 仲介 |
|---|---|---|---|
| 現況 | 空室 | 引渡し | 相談 |
| 総戸数 | 47戸 | 構造 | RC造 |
| テラス面積 | - | 専用庭面積 | - |
| 駐車場 | 空無 | 駐輪場 | - |
| 建物権利 | - | 土地権利 | 所有権 |
| 用途地域 | 準工業地域 - - | 管理態様 | 管理形態:委託(巡回) 管理組合:なし 管理会社:株式会社大京アステージ |
| 情報更新日 | 2026年04月25日 | 次回更新日 | 2026年05月09日 |
| 小学校区 | 鶴ヶ島市立長久保小学校 (埼玉県鶴ヶ島市) この学区の他の物件を見る |
中学校区 | 鶴ヶ島中学校 (埼玉県鶴ヶ島市) この学区の他の物件を見る |
|---|
センチュリー21クレド 坂戸本店
電話をかける(携帯・PHS可)
0120-89-9010
「ホームページを見た」とお伝え下さい。
お問い合わせ番号をお伝えください
RHS-143601-8384
| 価格 | 万円 | ||
|---|---|---|---|
| 年利率 | % |
||
| ボーナス払い | 返済年数 | ||
| 頭金 | 直接入力する | 万円 | |

毎月のご返済額 |
ボーナス(×年2回) |
物件価格1,390万円 |
電話でお問い合わせ
センチュリー21クレド 坂戸本店
|
電話をかける 0120-89-9010 ※「ホームページを見た」とお伝えください。 |
お問い合わせ番号をお伝えください RHS-143601-8384 |
|---|
SEARCH FOR HOME
フリーワードから探す
ESTATE FOR SALE

人気の条件から検索
室内フルリフォーム済!生活施設が徒歩圏内に充実した便利な立地
■安心のオートロック、宅配ボックス
■対面式キッチン(食洗機付)
■鶴ヶ島インターに近く、お出かけも便利