川越市豊田町2丁目 新築分譲住宅 全2棟 1号棟 埼玉県川越市豊田町2丁目|3,798万円の新築一戸建て|分譲住宅や新築物件|センチュリー21クレド

  • クレド坂戸本店tel:0120-89-9010

新築一戸建て

川越市豊田町2丁目 新築分譲住宅 全2棟 1号棟
お気に入り
価格 3,798万円 ローンシミュレーション
所在地 埼玉県川越市豊田町2丁目
この地域周辺の物件を見る
土地面積 130.31m² (39.42坪) 建物面積 104.27u
築年月 2026年2月築 間取り 3LDK (LDK18/洋室6/洋室6/洋室10.25)
交通
西武新宿線 南大塚 徒歩16分
東武東上線 川越 徒歩35分
JR川越線 西川越 徒歩37分
ここがおすすめ

■駐車場3台!制震ダンパー搭載の地震に強い住まい
■生活施設が徒歩圏内
■間取り変更可能な仕様
■南西向きLDK18帖
■食洗機、土間収納、パントリー
■長期優良住宅


  • 現地外観写真 南西側から自然光の入る陽だまりの3(4)LDK。
ライフスタイルの変化やお子様の成長に合わせて使えるフレキシブルな住まいです。
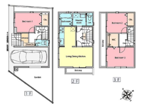
  • 間取り図 ゆとりある3(4)LDK!折上天井の開放感あふれるLDK18帖!
便利なパントリー、土間収納など収納豊富!
  • 前面道路含む現地写真 西武新宿線「南大塚」駅徒歩16分。
周辺にはスーパーなどの商業施設に加え、教育機関も充実。子育て世帯にも嬉しい、便利で安心な住環境が整っています。
  • リビング 【LDK18帖】
折上天井と化粧梁を採用し、空間に奥行きとアクセントをプラスしたこだわり仕様。
家具を置いてもゆとりある動線を確保できる広さです。
  • リビング 【LDK18帖】
たっぷりと自然光が差し込む、明るく開放的な空間。ご家族みんなが自然体で心地良く過ごすことができます。
  • キッチン フルオープンキッチンは視線が抜けて明るく、開放的な雰囲気に。
お料理をしながらお子さまの様子を見守れるので、子育て中のご家庭にも嬉しい間取りです。
  • キッチン キッチンは大人2人が並んでもゆとりのある広さで、毎日の家事の時間も快適に。
お子さまの「やってみたい!」にも、笑顔で応えたくなる空間です。
  • 収納 キッチン横に大容量のパントリーを設けました。
食品ストックや調理家電、飲料水などもたっぷり入り、キッチン周りを常にスッキリ美しく保てます。
  • 洗面台・洗面所 フルフラットカウンターが印象的なオープンサニタリーを採用しました。
下部はオープン収納になっており、カゴなどを置いておしゃれに演出できます。
  • 洗面台・洗面所 白を基調とした清潔感あふれるサニタリースペース。
大容量の収納を完備しており、タオルや着替え、日用品のストックもスッキリ片付きます。
  • 浴室 お子様と一緒に入浴できるゆとりの1坪タイプ。
1日の疲れを癒してくれるバスタイムを有意義に…。大人の方もゆったりと入浴できます。
  • トイレ 快適性と衛生面を兼ね備えたウォシュレット機能付きトイレ。お手入れもしやすく、清潔な状態を保ちやすいのも魅力です。
  • 洋室 【洋室6帖】
白を基調とした明るく清潔感のある洋室です。シンプルな内装なので、お好みの家具を置いて自分好みの空間を作れます。
  • 子供部屋 【洋室5帖+5.25帖】
ドアが2つ設けられた10.25帖の洋室。お子様が小さいうちは大きなプレイルームとして、成長に合わせて個室に仕切るなど、フレキシブルに使える空間です。
  • 子供部屋 【洋室5帖+5.25帖】
2部屋に分けた際も各部屋に収納が完備されているのが大きな魅力です。収納家具を置く必要がなく、お部屋を広々と使えます。
  • 洋室 【バルコニー側6帖】
南西バルコニーに面した明るい空間。日中も自然光がたっぷり入り、心地よい風が通り抜ける快適な空間です。
  • バルコニー 2つの部屋が繋がる開放的なバルコニー。
洗濯はもちろん、癒しの緑を育てたりと、新居でのちょっとした楽しみが増えそうですね。
  • 住戸からの眺望写真 お住まいバルコニーからの眺望です。
陽当たりの良い住宅街エリアのバルコニーからは、晴れた日には青々と広がる空を眺めることができます。
  • 玄関 天井まで高さのある大型シューズボックスが付いた玄関。
ご家族全員分の靴をたっぷりと収納できるので、玄関周りがいつもすっきりと片付きます。
  • 収納 【土間収納】
ベビーカーやゴルフバッグ、アウトドア用品などもそのまま収納可能。
玄関ホールを常にスッキリと美しく保つことができ、急な来客時も安心です。
  • 区画図 敷地39坪以上!並列3台駐車可能!
西武新宿線「南大塚」駅徒歩16分。
小・中学校が徒歩圏内で子育て家族にもオススメのエリア。
  • 駐車場 並列3台駐車可能なゆとりのカースペース付き。
ご家族の車はもちろん、お友達や親戚が遊びに来た時、急な来客時にも役立ちます。
  • 玄関 不在時でも荷物が受け取れる、便利な宅配ボックス付き機能門柱を設置。
共働きのご家庭や、ネットショッピングをよく利用される方に嬉しい設備です
  • キッチン 【ビルトイン食洗機】
高温で高濃度の洗剤による高圧洗浄ができる「食洗機」 洗うと同時に除菌もできるので、ご家族に安心してお料理を提供できます。
  • 洗面台・洗面所 【シャンプードレッサー】
引き出して使えるシャワー水栓で、小さなお子様の手洗いや、忙しい朝の洗顔・整髪もラクラク。
  • その他 【オートバス】
ボタン一つでお湯張りOK!お湯張りから保温まで自動進行するオートバスシステム。浴室とキッチン両方にあるので、どちらからでもお使いいただけます。
  • その他 【浴室換気暖房乾燥機】
乾燥・換気・暖房・涼風の4機能!
冬の寒さ対策から、湿気やカビ対策、日常的な乾燥まで便利に使えます。
  • 周辺環境 【スーパー】業務スーパー川越広栄店:920m
  • 周辺環境 【スーパー】ベルク川越むさし野店:1580m
  • 周辺環境 【コンビニ】セブンイレブン川越豊田本店:140m
  • 周辺環境 【コンビニ】ファミリーマート 川越南大塚店:1809m
  • 周辺環境 【ドラッグストア】マツモトキヨシニトリ川越:805m
  • 周辺環境 【小学校】川越市立大東東小学校:830m
  • 周辺環境 【中学校】川越市立大東中学校:570m
  • 周辺環境 【幼稚園・保育園】大東保育園:910m
  • 周辺環境 【駅】南大塚駅(西武 新宿線):1280m
お問い合わせ、資料請求、見学のお申し込みはこちらから

センチュリー21クレド 坂戸本店 電話をかける(携帯・PHS可)
0120-89-9010
「ホームページを見た」とお伝え下さい。

お問い合わせ番号をお伝えください
RHS-143601-8979

内見予約
お問合せ

セールスポイント

特徴
  • バリアフリー
  • フローリング
  • システムキッチン
  • カウンターキッチン
  • シャンプードレッサー
  • 追い焚き
  • シャワー
  • 給湯器
  • 浴室乾燥機
  • ガスコンロ
  • コンロ三口
  • 床下収納
  • バルコニー
  • TVドアホン
  • カースペース3台
  • 本下水
  • 都市ガス
  • 角地
  • カースペース2台以上
セールスコメント 住宅ローンやお買換え・下取等のご相談も賜っております。
有中国籍員工中文対応!

物件概要

採光面 南西 構造/階数 木造/地上2階建
建ぺい率 60(%) 容積率 200(%)
駐車場 現況/引渡し 新築/即時
土地権利 所有権 私道負担面積 -

接道状況 接道: 北 公道 道路幅: 3.5m
接道: 西 公道 道路幅: 4.2m
用途地域
第一種住居地域
セットバック - 法令上の制限 セットバック不要
地目 宅地 地勢
建築確認番号 第25UDI1W建07539号 都市計画 市街化区域
取引態様 仲介
情報更新日 2026年04月10日 次回更新日 2026年04月24日
※各種情報と差異がある場合は現況優先となります

学区情報

小学校区 大東東小学校
(川越市)
この学区の他の物件を見る
中学校区 大東中学校
(川越市)
この学区の他の物件を見る
※物件情報の学区情報について
当サイト物件情報に記載されております通学区域(学区)情報は、国土数値情報ダウンロードサービスが提供する小学校区データ【2016年度】及び中学校区データ【2016年度】を元に加工したものですので、記載情報が現在の学区域と異なる場合がございます。
国土数値情報ダウンロードサービスのWEBサイト上で記述通り、データは必ずしも正確とは言えません。また、通学区域(学区)は毎年見直しの対象となりますので、そちらを踏まえ学区情報は参考としてご活用下さい。
お問い合わせ、資料請求、見学のお申し込みはこちらから

センチュリー21クレド 坂戸本店 電話をかける(携帯・PHS可)
0120-89-9010
「ホームページを見た」とお伝え下さい。

お問い合わせ番号をお伝えください
RHS-143601-8979

内見予約
お問合せ

この物件でローンシミュレーションする

価格 万円
年利率
ボーナス払い 返済年数
頭金 直接入力する 万円

毎月のご返済額

ボーナス(×年2回)

物件価格

3,798万円
※返済金額はあくまでも目安です。

こちらの物件は複数区画の分譲地・他にも販売中のマンションがあります。

川越市豊田町2丁目
3598万円〜3798万円

センチュリー21クレド 坂戸本店 電話をかける(携帯・PHS可)
0120-89-9010
「ホームページを見た」とお伝え下さい。

お問い合わせ番号をお伝えください
RHS-143601-8979

内見予約
お問合せ

お問い合わせ

お問い合わせ内容
お問合せ内容必須
【備考欄】
詳細な見学ご希望時間、ご質問、ご希望条件などがございましたらお聞かせ下さい。
(2000文字以内)
お客様情報
お名前必須
連絡先必須 メールアドレス

※ご記入いただいたメールアドレス宛てに、お問合せ内容の確認メールをお送りいたします。
※Yahoo!メールなどのフリーメールをご利用の場合、迷惑メールフォルダに入る場合があります。
 迷惑メールのフォルダ・設定等をご確認下さい。
電話番号
FAX(任意)
※ご入力いただいたお客さまの個人情報は、「個人情報の取扱いについて」に基づき適正に取り扱います。必ずお読みになり、同意の上お問い合わせください。

お気軽にお問い合わせください

0120-89-9010
物件番号 RHS-143601-8979
※「ホームページを見た」
とお伝え下さい。
現地販売会
動画チャンネル更新中!
オリジナル新築分譲シリーズ公開中!

坂戸NO1バナー

中国語対応