| 価格 | 2,880万円 ![]() |
||||
|---|---|---|---|---|---|
| 所在地 | 埼玉県日高市高萩東1丁目
この地域周辺の物件を見る |
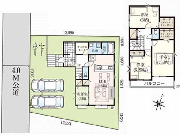
土地面積 | 153.26m² (46.36坪) | 建物面積 | 103.51u |
| 築年月 | 2026年7月築 | 間取り | 4SLDK (LDK16/和室3/洋室7.5/洋室6/洋室5.25) | ||
| 交通 |
JR川越線 武蔵高萩 徒歩9分
JR川越線 笠幡 徒歩37分 東武越生線 西大家 徒歩46分 |
||||
センチュリー21クレド 坂戸本店
電話をかける(携帯・PHS可)
0120-89-9010
「ホームページを見た」とお伝え下さい。
お問い合わせ番号をお伝えください
RHS-143601-9238
| 特徴 |
|
|---|---|
| セールスコメント | 住宅ローンやお買換え・下取等のご相談も賜っております。 有中国籍員工中文対応! |
| 採光面 | 東南 | 構造/階数 | 木造/地上2階建 |
|---|---|---|---|
| 建ぺい率 | 50(%) | 容積率 | 80(%) |
| 駐車場 | 有 | 現況/引渡し | 建築中/相談 |
| 土地権利 | 所有権 | 私道負担面積 | - |
| 接道状況 | 接道: 南西 9.06m 公道 道路幅: 4m | 用途地域 |
第一種低層住居専用地域
|
| セットバック | - | 法令上の制限 | 景観法 |
| 地目 | 山林 | 地勢 | |
| 建築確認番号 | 第HPA-26-02341-1号 | 都市計画 | 市街化区域 |
| 取引態様 | 仲介 | ||
| 情報更新日 | 2026年05月16日 | 次回更新日 | 2026年05月30日 |
| 小学校区 | 日高市立高萩北小学校 (埼玉県日高市) この学区の他の物件を見る |
中学校区 | 高萩北中学校 (埼玉県日高市) この学区の他の物件を見る |
|---|
センチュリー21クレド 坂戸本店
電話をかける(携帯・PHS可)
0120-89-9010
「ホームページを見た」とお伝え下さい。
お問い合わせ番号をお伝えください
RHS-143601-9238
| 価格 | 万円 | ||
|---|---|---|---|
| 年利率 | % |
||
| ボーナス払い | 返済年数 | ||
| 頭金 | 直接入力する | 万円 | |

毎月のご返済額 |
ボーナス(×年2回) |
物件価格2,880万円 |
センチュリー21クレド 坂戸本店
電話をかける(携帯・PHS可)
0120-89-9010
「ホームページを見た」とお伝え下さい。
お問い合わせ番号をお伝えください
RHS-143601-9238
SEARCH FOR HOME
フリーワードから探す
ESTATE FOR SALE

人気の条件から検索
■南西公道に面し陽当り良好
■折上天井のLDK16帖
■2WIC・SC・リビング収納・サービスルーム付き
■多様な用途に使える1階和洋室
■並列2台駐車可