| 価格 | 3,980万円 ![]() |
||||
|---|---|---|---|---|---|
| 所在地 | 埼玉県川越市寺尾
この地域周辺の物件を見る |
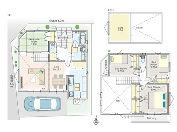
土地面積 | 100.05m² (30.27坪) | 建物面積 | 99.63u |
| 築年月 | 2024年12月築 | 間取り | 4LDK (LDK19.25/和室5.75/洋室5.25/洋室5.25/洋室8) | ||
| 交通 |
東武東上線 上福岡 徒歩15分
東武東上線 新河岸 徒歩17分 JR川越線 南古谷 徒歩41分 |
||||
センチュリー21クレド 坂戸本店
電話をかける(携帯・PHS可)
0120-89-9010
「ホームページを見た」とお伝え下さい。
お問い合わせ番号をお伝えください
RHS-143601-9014
| 特徴 |
|
|---|---|
| セールスコメント | 住宅ローンやお買換え・下取等のご相談も賜っております。 有中国籍員工中文対応! |
| 採光面 | 南 | 構造/階数 | 木造/地上2階建 |
|---|---|---|---|
| 建ぺい率 | 60(%) | 容積率 | 100(%) |
| 駐車場 | 有 | 現況/引渡し | 未入居/即時 |
| 土地権利 | 所有権 | 私道負担面積 | - |
| 接道状況 | 接道: 北 公道 道路幅: 4.2m 接道: 西 公道 道路幅: 4.5m |
用途地域 |
第一種低層住居専用地域
|
| セットバック | - | 法令上の制限 | 法22条区域 景観法 建物面積:別途ロフト9.72平米有 建ぺい率:角地緩和 |
| 地目 | 宅地 | 地勢 | 平坦 |
| 建築確認番号 | 都市計画 | 市街化区域 | |
| 取引態様 | 仲介 | ||
| 情報更新日 | 2026年04月10日 | 次回更新日 | 2026年04月24日 |
| 小学校区 | 寺尾小学校 (川越市) この学区の他の物件を見る |
中学校区 | 寺尾中学校 (川越市) この学区の他の物件を見る |
|---|
センチュリー21クレド 坂戸本店
電話をかける(携帯・PHS可)
0120-89-9010
「ホームページを見た」とお伝え下さい。
お問い合わせ番号をお伝えください
RHS-143601-9014
| 価格 | 万円 | ||
|---|---|---|---|
| 年利率 | % |
||
| ボーナス払い | 返済年数 | ||
| 頭金 | 直接入力する | 万円 | |

毎月のご返済額 |
ボーナス(×年2回) |
物件価格3,980万円 |
センチュリー21クレド 坂戸本店
電話をかける(携帯・PHS可)
0120-89-9010
「ホームページを見た」とお伝え下さい。
お問い合わせ番号をお伝えください
RHS-143601-9014
SEARCH FOR HOME
フリーワードから探す
ESTATE FOR SALE

人気の条件から検索
■吹き抜けが付いた開放的なLDK19.25帖×対面式キッチン
■パントリー、ロフトなど収納も豊富
■寺尾小・中学校まで徒歩12分!商業施設や保育園も徒歩圏内に充実!